Daerah Istimewa Yogyakarta dikenal sebagai kota pelajar & kota budaya. Perguruan tinggi dan universitas yang ada disini lebih lengkap dan banyak pilihan dibanding kota lainnya. Setidaknya tercatat 5 PTN (UGM, UNY, ISI, UIN dan UPN) serta berbagai PTS favorit (UII, UMY, UAD, Amikom, USD, UAJY, UKDW, Unriyo, dll) .
UGM merupakan salah satu kampus besar di Indonesia yang berlokasi di JOGJA. Setiap tahunnya tidak kurang 10.000 mahasiswa baru belajar selama 3 sd 5 th di kampus ini. Total mahasiswa bisa mencapai 30.000 sd 40.000 tentunya membawa berbagai dampak positif bagi ekonomi dan bisnis di area sekitarnya. Salah satu bisnis yg tak lekang waktu adalah hunian kost baik exclusive maupun non exclusive.
Buat Anda yg masih hunting aset properti tanah untuk rumah tinggal, kami siapkan lokasi spesial yang hanya berjarak 10 menit (4 km) saja ke kampus UGM.
LOKASI SPESIAL:
– Hanya 500 m dari Lalan Palagan
– 750 meter menju Hotel Hyatt
– 1,1 km (3 menit) menuju Superindo, Indolux Hotel
– 4 km (10 menit) menju kampus UGM, RSUP Prof Sardjito, Miro Kampus
– 3,5 km (7 menit) menuju Ringroad Monjali
– 3,7 km (9 menit) menuju Jogja City Mall, Indo Grosir
– 6,9 km (15 menit) menuju POLDA DIY, RS JIH, Pakuwon Mall, Kampus AMIKOM, UPN, Mercu Buana, dll
SELLING POINT:
– Lahan datar, siap bangun
– Legalitas : SHM
– Lokasi dekat sekali dengan berbagai Perkantoran, Rumah Sakit, Mall, Pusat belanja, dll
– Sangat cocok untuk hunian rumah tinggal ataupun investasi
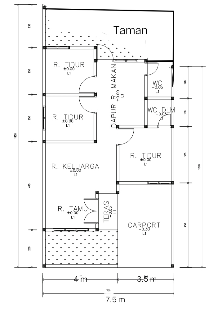
PILIHAN UNIT
– Kav A, Luas 116 meter (LD 7,5 meter)
– Kav B, Luas 116 meter (LD 7,5 meter)
– Kav C (terjual)
Harga Rp. 5,4 jt/m
OPSIONAL UNTUK UNIT RUMAH dg MEZANIN
– Kav A, Type 60/116 Rp. 890 jt (3 KT, 2 KM)
– Kav B, Type 60/116 Rp. 890 jt (3 KT, 2 KM)
Info : Priyanto Pastika
Wa Ph 0811.9813.777
Fast Respon klik http://wasap.my/628119813777/InfoMiniKlasterSedan


















